Residenz am See

Die Residenz am See, direkt (ca. 50 m) am Fleesensee gelegen, bietet Ihnen auf einer Gesamtfläche von ca. 145 qm allen Komfort, den Sie für einen wunderbar erholsamen Urlaub benötigen.

 

3 Tage ab 434.- EUR* inklusive Endreinigung

jeder weitere Tag ab 98.- Euro

 

*Im Preis ist eine einmalige Gebühr für die Endreinigung von 140.- EUR enthalten.

 

Zum Vergrößern der Fotos diese bitte anklicken / tippen..


a1_20241120_105046
a1_img_1131
b1_img_1147
b1_img_1148
b2_img_1145
b2_IMG_1153
b3_201406_08
b4_img_1144
b5_201406_10
b5_201406_11
c1_img_1139
c2_img_1141
c3_201406_19
c3_201406_22
c3_201406_23
c5_201406_26
c5_img_1136
d1_201607_01
d1_img_0274
d1_img_1113
d1_img_1114
d1_img_1124
d2_201504_02
d2_201504_06
d2_img_1133
d2_img_1134
d2_IMG_1164
e_201406_eg_01
e_201406_og_01
l1_201406_30
l1_201406_31_
l1_201406_32_
l1_201406_33_
l1_201406_40_
l1_img_0252
l2_201406_36_

 

­Nachdem Sie die Gelegenheit hatten das Ferienhaus auf einigen Fotos kennen zu lernen, haben Sie nun die Möglichkeit, uns auf einer Tour in und um Ihr Zuhause auf Zeit zu begleiten und unsere Residenz am See noch ein wenig näher kennen zu lernen:

Urlaub... - beginnt mit dem Parken vor der Tür.

Hierzu haben wir Ihnen bereits 2 PWK-Parkplätze, direkt am Haus, reserviert.
Wenn Sie ein E-Auto besitzen ist ein Laden bis max 11KW und Stecker Typ 2 möglich.

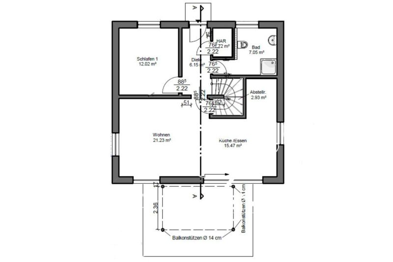
Sie betreten das Haus durch unseren Hauseingang und sind direkt im Flur. Hier befindet sich die Garderobe mit Ablagemöglichkeit sowie ein großer Spiegel.

Vom Flur geht es zum einen ab in das erste Schlafzimmer. Dieses ist, wie alle anderen Schlafzimmer auch, ausgestattet mit einem Boxspringbett (180 cm x 200 cm), einem großen Kleiderschrank, Fernseher sowie einem kleinen Tisch mit Stuhl.

Auf der anderen Seite des Flures befindet sich das erste von zwei Badezimmern. Dieses ist großzügig gestaltet, verfügt über eine ebenerdige Dusche, über Waschbecken, Toilette, Spiegel und Föhn. Eben alles was ein Bad ausmacht.

Nun geht es weiter zum lichtdurchfluteten, geräumigen Wohn- Essbereich mit angrenzender offener Küche.

Der Wohnraum ist unter anderem ausgestattet mit zwei Sofas sowie einem Sessel. Der per Knopfdruck steuerbare Gaskamin sorgt im Winter für wohlige Wärme und eine wunderbar gemütliche Atmosphäre. Damit es Ihnen an nichts fehlt verfügt der Raum zusätzlich über einen DVD-Player, eine HiFi-Anlage und Sat TV. Selbstverständlich haben wir hier für die gemütlichen Abende einige Bücher, DVDs und Spiele für Sie bereitgestellt.

Der Essbereich verfügt über einen Tisch und Sitzgelegenheiten für 6 Personen und grenzt an die voll ausgestattete Küche an. Von hier können Sie bereits einen ersten kleinen Blick auf den See werfen.

Unsere Küche ist ausgestattet mit Cerankochfeld, Backofen, Mikrowelle, Toaster und selbst einem Eierkocher, also für jede Aufgabe gerüstet. Selbstverständlich verfügt sie über grundlegende Dinge wie u.a. Kaffeemaschine, Kühl- und Gefrierschrank und Geschirr in ausreichender Menge, sodass Sie den Geschirrspüler nicht gleich nach jeder Mahlzeit anstellen müssen.

Vom Wohn-Essbereich aus haben Sie die Möglichkeit, die Terrasse durch ein großes Türelemente zu betreten. Unsere Terrasse ist komplett ausgestattet mit Gartenstühlen, einem Tisch, Sonnenliegen und Sonnenschirm. Durch den darüber liegenden Balkon können Sie die Terrasse sogar bei einem kleinen Schauer nutzen.

Im Garten selbst steht Ihnen jederzeit ein gemauerter Grill zur Verfügung. Ihre Fahrräder, die Golfausstattung, das kleine Paddelboot oder was sonst noch sicher und trocken gelagert werden soll, verstauen Sie einfach in unserem abschließbaren Gartenhaus.

Der ganzjährig nutzbare und beheizte Whirlpool (37 Grad) lädt bei jeder Wetterlage zu einem kleinen Bad und ganz viel Entspannung ein.

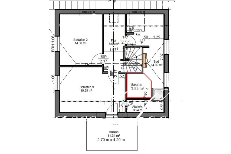
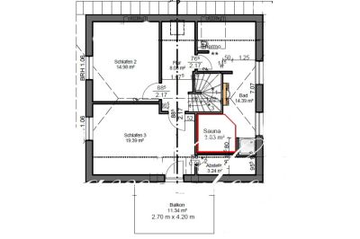
Nun gehen wir zurück in den Flur und von dort über einige Treppenstufen in das obere Geschoss.

Hier finden Sie 2 weitere Schlafräume. Diese sind ebenso wie das Erste ausgestattet, mit einem Boxspringbett (180 cm x 200 cm), Kleiderschrank, Fernseher sowie Tisch und Stuhl.

Der "Haupt"-Schlafraum, das größte der Schlafzimmer, bietet Ihnen Zugang zu unserem Balkon mit ein wenig Seeblick. Selbstverständlich finden Sie auch hier einen Gartentisch und 4 Stühle. Genießen Sie den Ausblick und lassen Sie die Seele baumeln.

Auch das Bad in der oberen Etage kann sich sehen lassen und verdient durch seine Ausstattung eher den Namen Wellnessbereich. Hier befinden sich zu der Grundausstattung (Waschbecken, Dusche, Toilette, Föhn, Spiegel) zusätzlich noch eine finnische Holz-Sauna sowie eine großzügige Eck-Badewanne.

Damit Ihr Aufenthalt zu einem Urlaub wird, an dem es Ihnen an (fast) nichts fehlt, haben wir für Sie alle Räume mit Fußbodenheizung, einer Wohnraumlüftungsanlage und Fliegengittern ausgestattet.

Selbstverständlich stehen Ihnen auch u.a. folgende Dinge kostenfrei zur Verfügung: Internet, Staubsauger, Waschmaschine, Trockner, Wäscheständer, Gartenhaus und vieles mehr. Entdecken Sie es selbst bei einem Aufenthalt bei uns.

Für alle Gäste die Ihre Privatsphäre schätzen runden die Außenrollos und ein umzäuntes/durch Hecken eingegrenztes Grundstück das Ganze dann noch ab.

Handtücher und Bettwäsche können Sie für die Dauer Ihres Aufenthaltes gegen eine geringe Gebühr dazu buchen.

Bitte beachten Sie, dass es sich bei unserem Haus um ein Nichtraucherhaus handelt.

In Ihrem Zuhause auf Zeit ist auch Ihr Hund herzlich willkommen. Dieser freut sich sicherlich über einen Besuch am Hundestrand, der nur wenige Schritte von unserem Haus entfernt liegt.

Für alle anderen befinden sich, ebenso nur wenige Schritte entfernt, der flach abfallende, kinderfreundliche See, der Sandstrand, ein Spielplatz für die Kleinen, Picknickplätze, ein Wagen mit Kleinigkeiten zu essen und zu trinken, sowie einem leckeren Eis. Zudem finden Sie dort auch die Strandbar, Bootsanleger, Yachthafen....

Auf Grund eines elektronischen Schlosses können Sie zeitlich flexibel ab 16 Uhr anreisen. Die Abreise ist ebenso zeitlich flexibel, jedoch bis spätestens 10 Uhr, möglich. Den Code für das Schloss erhalten Sie kurz vor Ihrer Anreise von uns.

 

Mietbedingungen

Die Betreuung der Gäste findet durch uns als Gastgeber persönlich statt.

Wir freuen uns immer wieder über die vielen netten Kontakte, ob per Mail oder ganz oft auch telefonisch sowie in seltenen Fällen sogar persönlich.

Scheuen Sie sich nicht und kommen gern mit Fragen, Anregungen etc. auf uns zu.

Wir freuen uns darauf, bald auch schon Ihre Gastgeber zu sein.

Herzliche Grüße

Familie Pastorik

 QMF 2025 Land Fleesensee

Verfügbarkeit

Dezember 2025
MoDiMiDoFrSaSo
 1  2  3  4  5  6  7 
 8  9 1011121314
15161718192021
22232425262728
293031    
       
Januar 2026
MoDiMiDoFrSaSo
    1  2  3  4 
 5  6  7  8  9 1011
12131415161718
19202122232425
262728293031 
       
Februar 2026
MoDiMiDoFrSaSo
       1 
 2  3  4  5  6  7  8 
 9 101112131415
16171819202122
232425262728 
       
März 2026
MoDiMiDoFrSaSo
       1 
 2  3  4  5  6  7  8 
 9 101112131415
16171819202122
23242526272829
3031     
April 2026
MoDiMiDoFrSaSo
   1  2  3  4  5 
 6  7  8  9 101112
13141516171819
20212223242526
27282930   
       
Mai 2026
MoDiMiDoFrSaSo
     1  2  3 
 4  5  6  7  8  9 10
11121314151617
18192021222324
25262728293031
       
Juni 2026
MoDiMiDoFrSaSo
 1  2  3  4  5  6  7 
 8  9 1011121314
15161718192021
22232425262728
2930     
       
Juli 2026
MoDiMiDoFrSaSo
   1  2  3  4  5 
 6  7  8  9 101112
13141516171819
20212223242526
2728293031  
       
August 2026
MoDiMiDoFrSaSo
      1  2 
 3  4  5  6  7  8  9 
10111213141516
17181920212223
24252627282930
31      
September 2026
MoDiMiDoFrSaSo
  1  2  3  4  5  6 
 7  8  9 10111213
14151617181920
21222324252627
282930    
       
Oktober 2026
MoDiMiDoFrSaSo
    1  2  3  4 
 5  6  7  8  9 1011
12131415161718
19202122232425
262728293031 
       
November 2026
MoDiMiDoFrSaSo
       1 
 2  3  4  5  6  7  8 
 9 101112131415
16171819202122
23242526272829
30      
Dezember 2026
MoDiMiDoFrSaSo
  1  2  3  4  5  6 
 7  8  9 10111213
14151617181920
21222324252627
28293031   
       
Januar 2027
MoDiMiDoFrSaSo
     1  2  3 
 4  5  6  7  8  9 10
11121314151617
18192021222324
25262728293031
       
 1 Verfügbar
 2 Nicht verfügbar
 3 Reserviert

Extras

Endreinigung145.00€pro Buchung
Energiepauschale2.00€Per person per nightEnergiepauschale
Bettwäsche16.00€pro Person pro Buchung
Handtücher13.50€pro Buchung1 Duschtuch + 2 Handtücher incl. Duschvorlage
Sauna Handtuch und Bademantel19.00€pro StückSaunahandtuch und Bademantel
Kinderbett u. Hochstuhl25.00€pro BuchungKinderbett incl. Aufbettung
Hund(e)30.00€pro BuchungZusatzreinigung Hund
Hund(e) Tagessatz2.50€Per night
Kurtaxe Hauptsaison Voll 1.3.-31.10.2.00€Per adult per day1.3.-31.10. ab 16 Jahre
Kurtaxe Hauptsaison Ermäßigt 1.3.-31.10.1.00€Per adult per day1.3.-31.10 Schüler, Auszubildende und Studenten bis zur Vollendung des 27. Lebensjahres mit Nachweis. Schwerbehinderte (50-100 Prozent Behinderung)
Kurtaxe Nebensaison Voll 1.11.-28/29.021.50€Per adult per day1.11.-28/29.02 ab 16 Jahre
Kurtaxe Nebensaison Ermäßigt 1.11.-28/29.020.75€Per adult per day1.11.-28/29.02 Schüler, Auszubildende und Studenten bis zur Vollendung des 27. Lebensjahres mit Nachweis. Schwerbehinderte (50-100 Prozent Behinderung)

Aus unserem Gästebuch

R. Meyer
Erholsame Tage
Wir waren mit Freunden ein paar Tage in der Residenz am See und haben uns rundum wohlgefühlt. Alles war modern, sauber und sehr gut ausgestattet!
Bewertung - 1 Star EmptyBewertung - 2 Star EmptyBewertung - 3 Star EmptyBewertung - 4 Star EmptyBewertung - 5 Star Empty
Mittwoch, 18. September 2019
Rose
.
Liebe Familie Pastorik, vielen Dank für das tolle zur Verfügung gestellte Haus. Wir verbrachten eine sehr schöne Zeit, trotz sehr schlechtem Wetter, und fühlten uns wie zu Hause. Das Haus ist mit allem bis ins kleinste Detail eingerichtet. Die Gegend um das Haus war einfach wunderbar. Wir kommen auf jeden Fall wieder :). Wenn es klappt schon nächstes Jahr. Herzliche Grüße Familie Rose...
Bewertung - 1 Star FullBewertung - 2 Star FullBewertung - 3 Star FullBewertung - 4 Star FullBewertung - 5 Star Full
Freitag, 04. September 2020
Steffen
Sehr Erholsam
Der Aufenthalt hat uns sehr gefallen es ist auf jedenfall zum weiter empfehlen . Wir woll nästes Jahr wieder kommen.
Bewertung - 1 Star EmptyBewertung - 2 Star EmptyBewertung - 3 Star EmptyBewertung - 4 Star EmptyBewertung - 5 Star Empty
Dienstag, 17. März 2015